除尘设备
福建空压机供应-厦门管道设计安装与改造服务价格
2018-10-07 19:06  点击:133
价格:¥0.00/普通
品牌:太金
供应:1普通
发送询价

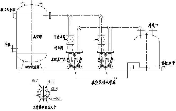
优质管道设计安装与改造服务提供

太金机电是一家贸易型的公司,位于福建省,成立于2011-09-20,主营行业是压缩设备。本着客户满意和信赖是我们永恒的追求的服务宗旨,为福建、厦门、漳州、泉州的需求用户提供优质的管道设计安装与改造。太金机电愿与各界人士携手并进,共创美好未来。

厦门太金机电有限公司(简称“太金机电”),位于福建省厦门市集美区,专业销售进口和国内螺杆空压机(品牌:阿特拉斯?科普柯、尚爱中高压空压机、美国昆西、上海信然等)、空压机系统、制氮机;机电系统设计安装、自动化控制、工艺管道、通风排气工程的综合性机电技术公司。主要营业:螺杆空压机、变频空压机、无油螺杆空压机、移动式空压机、干燥机(冷冻式干燥机/吸附式干燥机);空压机系统、制氮机、储气罐销售及技术服务;空压机/制氮机系统连接件配件、耗材、空压机油;空压机维修、保养服务、3D打印机及打印服务。服务范围:空压机销售及维修保养、干燥机销售及维修保养、冷干机销售及维修保养、空压机系统(销售、设计、安装和维修保养)、制氮机销售及维修保养、精密过滤器、空压机/制氮机系统连接件配件、耗材、空压机油、储气罐、3D打印机销售及打印服务、3D打印机耗材等。空压机系统(销售、设计、安装和维修保养)。

我们的管道设计安装与改造追求新颖创新,具有周期短,效率高的服务特色。我坚信我们必定能给您带来不一样的体验,让您感到满意而归。“精诚合作,互利共赢”是厦门太金机电有限公司的一贯服务理念,用户的需求就是我们的奋斗目标。太金机电将以可靠的质量、优良的服务与您真诚合作、共谋发展!

太金机电本着“开拓、创新、立足市场求发展,优质,,用心服务为用户”的宗旨,全心全意为需求用户服务。满足客户的要求,便是我们努力奋斗的目标。为了可以向广大需求用户以及潜在客户提供优质而全面周到的管道设计安装与改造服务。你可以随时拨打我们的服务热线,我们会马上为您提供专业而全面的维修解决方案。

太金机电以“专业、、团队、创新、诚信、共赢”为经营理方式,秉承以需求用户需求为中心,专注于管道设计安装与改造的创新,“服务”理应成为产品开拓的有力后盾,晋凡也同样会把服务作为重心去做,只为给您更好的体验。厦门太金机电有限公司相信只要我们携手并肩,定能共创辉煌。

关于福建空压机供应,空压机价格,空压机报价,厦门空压机,漳州空压机供应信息,请来电联系我们咨询了解

管道设计安装与改造

联系方式
公司:厦门太金机电有限公司
状态:离线 发送信件 在线交谈
姓名:蔡经理(先生)
职位:经理
电话:0592-6101149
手机:18850019100
传真:0592-3778289
地区:福建-厦门市
地址:厦门市集美区海凤南里
邮编:361000
邮件:xmtaijin@126.com
QQ:2440274706
发表评论
0评